Warning: Trying to access array offset on false in /data01/virt146823/domeenid/www.old.modules.ramirent.ee/htdocs/wp-content/themes/Divi/includes/builder/functions.php on line 876
Site hut – FFA for Finland | Ramirent Modular Factory

 

Site hut FFA – extra wide module type for Finland

FFA modules were created to use every m2 of the module as optimally as possible.

Modules meet the Finnish statutory requirements.

 

About

Site hut FFA product family consists of the following modules:

  • Office – comfortable office modules for your needs
  • Sanitary – module containing kitchen and wet compounds as shower rooms and toilets
  • Manpower – quality modules for the workers

Final interior solutions according to your needs!

To see the different versions, please see the sections below.

Office

Module types

FFA-10
Empty office (1 room)
view PDF view 3D

FFA-12
Empty office (2 rooms)
view PDF view 3D

FFA-13
Empty office (1 room)
view PDF view 3D

FFA-20
Open room
view PDF view 3D

FFA-21
Half room (right side closed)
view PDF view 3D

FFA-22
Half room (left side closed)
view PDF view 3D

Sanitary and manpower

Module types

FFA-33
50% - 50%
(manpower-sanitary) 2 WC, 2 drying cabinets,
kitchen and dining area
view PDF view 3D

FFA-50
Manpower
28 lockers
view PDF view 3D

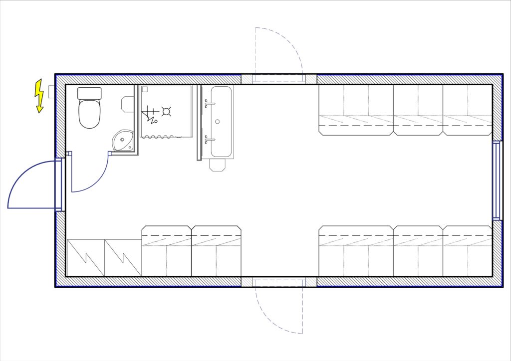
FFA-51
Manpower
1 WC, 1 shower, 1 sink, 2 drying cabinets, 18 lockers
view PDF view 3D

FFA-52
Manpower
28 lockers, drying room
view PDF view 3D

FFA-60
Sanitary
3 WC (+2 urinals), 3 showers, 2 washing corners
view PDF view 3D

The solution for you

There are many options to choose from: starting from an empty module up to a fully equipped one – you decide.

We will help you to build a solution where every module has a specific purpose for your special requirements. The modules can be combined together in a domino-like way to form a whole workspace that meets all your needs.

Each module has different customizations available – for more details see the “view PDF” next to each module type above.

Modify:

  • Exterior colour
  • Add your branding
  • Interior layout by purpose
  • Solution from interior design options
  • Interior furnishings

Pricing

Do you have any questions?
We would be happy to advise and find the right solution for you!

Non-binding enquiry

© 2020 Ramirent Modular Factory AS Home · About · Our Products · References · Quality · Contact Us